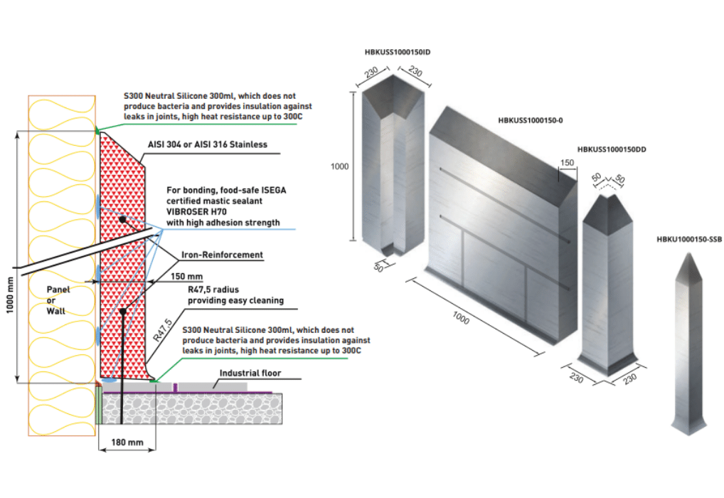
Bordure en acier inoxydable, sur le revêtement de sol 1000x1000x150mm
Description
La bordure en acier inoxydable est renforcée par des armatures en acier inoxydable de classe AISI 304 et AISI 316L, des armatures composites et des armatures en fer. Le remplissage en béton visco et l'acier inoxydable sont liés par une technique spéciale. Grâce à ces caractéristiques, elle est durable, robuste et de longue durée.
Bordure en acier inoxydable, sur le revêtement de sol, appliquée devant les revêtements de sol. Dimensions de 1000x1000x150mm
Domaines d'utilisation des bordures en acier inoxydable
- Industrie alimentaire (viande, poisson, lait, produits laitiers, produits de boulangerie, huile, aliments, boissons, etc.)
 - Secteur de la santé (hôpitaux, laboratoires, production pharmaceutique et entreposage),
 - Secteurs de la chimie, de la pétrochimie, de l'automobile, des cosmétiques, de la logistique et du transport, du tourisme,
 - Centres commerciaux et supermarchés, etc.
 
Aractéristiques des bordures en acier inoxydable
- Hygiénique
 - Sécurité alimentaire
 - Haute résistance aux acides et aux produits chimiques
 - Résistance aux impacts des chariots élévateurs, transpalettes et autres chariots.
 - Résistante aux chocs moyens et lourds
 - Résistante aux rayures
 - Résistance aux environnements chauds, froids et humides
 - Résistance à la saleté et aux taches
 - Protection contre la corrosion
 - Antimicrobien et antibactérien
 - Grâce à sa surface non poreuse, la saleté et les germes ne peuvent pas s'y loger.
 - Facile à nettoyer
 - Facile à assembler
 - Peut être appliquée sur tous les types de sol
 - Conforme aux normes EHEDG
 - Certifiée HACCP
 - Répond à tous les processus liés à la santé et à l'hygiène
 - produite selon les normes internationales
 




                Bordure en acier inoxydable, sur le revêtement de sol 1000x1000x150mm
- Prix normal
 - 
        
          
0.00TL  - Prix normal
 - 
          
 - Prix de vente
 - 
        
          
0.00TL  
3D
AREA OF USE
Food Processing
            Meat Processing
            Dairy Processing
            Poultry Processing
            Beverage Production
            Cold Storage Warehouses
            Chemical Laboratories
            Pharmaceutical Facilities
            Breweries
            Seafood Processing
            Commercial Kitchens
            Distilleries
            Clean Rooms
            Food Packaging Facilities
            Confectionery Production
            Bakeries
           
        
