1
/
of
5
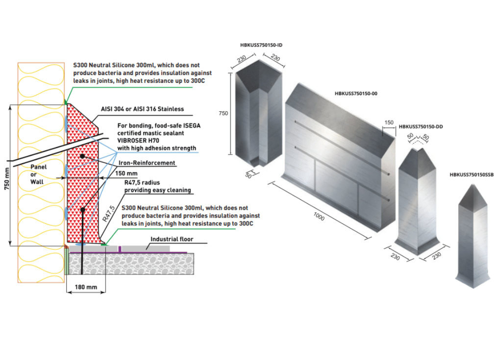
Бордюр из нержавеющей стали, поверх напольного покрытия 750x1000x150 мм
Description
Бордюр из нержавеющей стали изготавливается из нержавеющей стали марок AISI 304 и AISI 316L с заполнением из вязкобетона. Изделие отличается исключительной прочностью и долговечностью, так как оно усилено композитной и железной арматурой.
Бордюр из нержавеющей стали, поверх напольного покрытия 750x1000x150 мм, наносится перед напольными покрытиями. Размеры 750x1000x150 мм
Зоны использования бордюров из нержавеющей стали
- Пищевая промышленность (Мясо, рыба, Молоко, молочные продукты, хлебобулочные изделия, масло, Продукты питания, напитки и т.д.)
- Сектор здравоохранения (Больница, лаборатория, Фармацевтическое производство-Складирование),
- Химическая, нефтехимическая, автомобильная, косметическая отрасли, Логистика , Туризм,
- Торговые центры и супермаркеты и т.д.
Основные характеристики бордюра из нержавеющей стали
- Гигиеничный
- Пищевая безопасность
- Высокая устойчивость к кислотам и химическим веществам
- Устойчив к ударам вилочных погрузчиков, паллетовозов и других тележек
- Устойчив к средним и тяжелым ударам
- Устойчив к царапинам
- Устойчив к воздействию горячей, холодной и влажной среды
- Устойчив к загрязнениям и пятнам
- Защита от коррозии
- Противомикробный и антибактериальный
- Грязь и микробы не накапливаются благодаря его непористой поверхности
- Легко очищаемый
- Простая установка
- Может наноситься на все типы грунта
- Сертифицированный EHEDG
- Сертифицированный HACCP
- Соответствует всем директивам по охране здоровья и гигиене
- Соответствует международным стандартам
Вы можете просмотреть все наши продукты здесь.




Бордюр из нержавеющей стали, поверх напольного покрытия 750x1000x150 мм
- Regular price
-
0.00TL - Regular price
-
- Sale price
-
0.00TL
3D
AREA OF USE
Food Processing
Meat Processing
Dairy Processing
Poultry Processing
Beverage Production
Cold Storage Warehouses
Chemical Laboratories
Pharmaceutical Facilities
Breweries
Seafood Processing
Commercial Kitchens
Distilleries
Clean Rooms
Food Packaging Facilities
Confectionery Production
Bakeries

